099-226-7777
受付時間/09:00~17:30 定休日/水曜

マンション
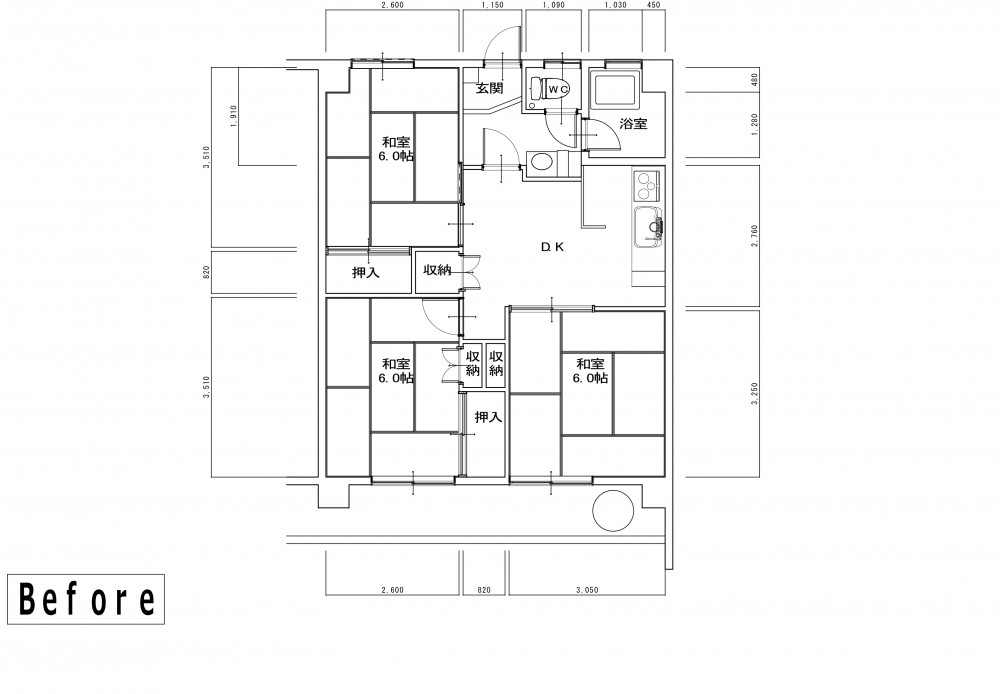
鹿児島市内にある、築42年のマンションの一室。
生活スペースから離れた台所に、3つの和室と、
なんとなく一昔前の暮らしを思わせる部屋でした。
若い世代のお客様が住み始めるこのお部屋。
構造部分を除くほぼすべての部分を解体し、
ゼロから居住空間をつくりました。
いわゆる「スケルトンリフォーム」です。
生まれ変わったお部屋は、
新築マンションのようなシンプルモダンの空間。
3DKだった間取りは2LDKに。
閉鎖的だったキッチンを対面式のIHキッチンに変えるとともに、
広々としたリビングダイニングを確保しました。
押し入れ形状だった収納も、
洋服を整理しやすいクローゼット形状へ。
ベランダに設けられていた洗濯機スペースは、洗面所へ移設しました。
築年数の経過したマンションでも、
リフォームによって、洗練された快適な空間を実現できるのです。














